professional experience
work 2024 {{
+ - (thesis)
new hearth
work 2023 **
pirroette
babble
work 2022 >>
in a perfect world
i wouldn’t be here
work 2021 ::
_lo.ading
clumsy x _lo.ading
work 2020 //
degrowthtorium
snapback, caliper, shift 06
work 2019 ::
ambr
work 2018 ~~
glitch
fragments
destruction of mosul
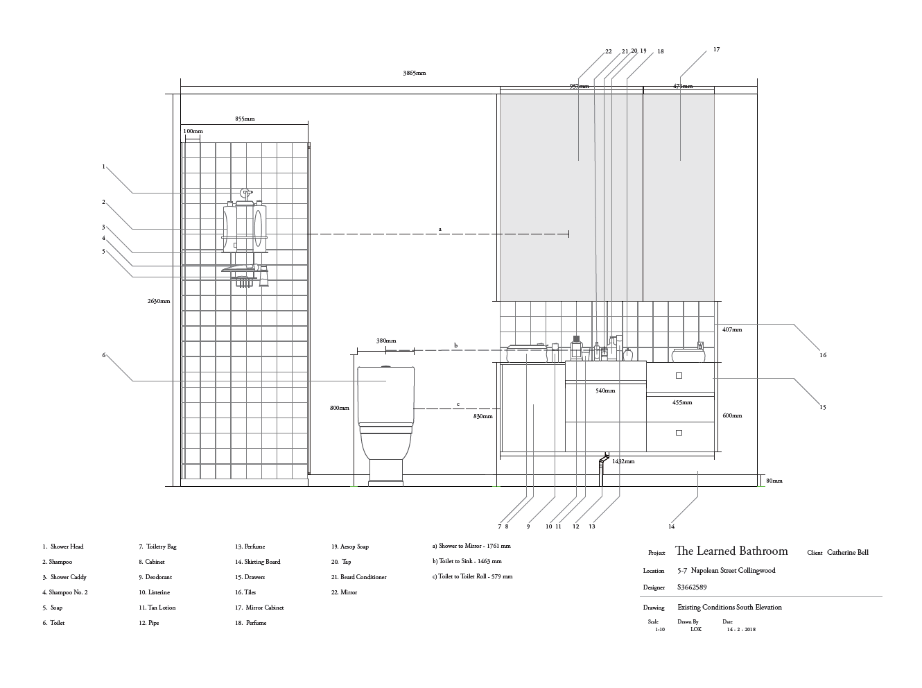
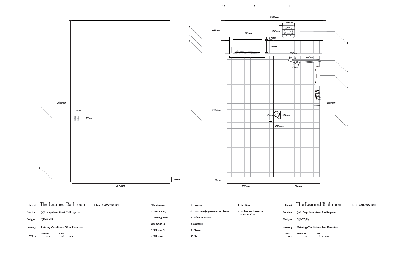
the learned bathroom
— The Wurundjeri Woi Wurrung people are the traditional custodians of this land and waters of the place I reside and work. I acknowledge that this land is unceded and soverign land.
the learned bathroom

LOK / 2018
From There’s No Such Thing As Fiction
Taught by Marijke Davey
Programme Bathroom Remodel
Following the investigation into the destruction of Mosul the studio pivoted towards the remodel of a bathroom in Collingwood, challenging students to deal with the realities of practice and asking for them to hold a proposition to the two events. My response to this challenge formulated that a pure rejection of relevance would in fact be a missed opportunity. That in fact a defiant message of importance and relevance should be sort. As a result with see the bathroom be understood as a place of refuge not just for the human occupants for the books. Here they are placed together where a compactus-esque storage is placed into the wall with two spaces for the dissemination of knowledge, one at the level of the street and one at the level of the bathroom. Insisting to an unassuming public not only to be apart of the protection of culture but inviting them to utilise it.